|
|
 |
//-->
версия для печати
7.4. Снятие и установка карданного валаУстанавливаются два различных исполнения карданных вала: карданный вал, состоящий
из двух частей с центральным подшипником и карданный вал, имеющий два центральных
подшипника и один дополнительный шарнир равных угловых скоростей. Обратите внимание
на различие при снятии.
|
|
 |
Операция подъема и установки автомобиля на подставки связана
с опасностью! Поэтому перед проведением операции ознакомьтесь
с Разделом Поддомкрачивание и буксировка
|
1 Поднимите и установите автомобиль на подставки. Снимите систему
выпуска, обратитесь к Разделу Снятие
и установка системы выпуска.
 |
2 Отверните болты крепления и снимите теплозащитные экраны
-1- и -2- с днища.
|
 |
3 Отверните болты крепления и отсоедините эластичную муфту
от КПП (стрелки на иллюстрации). Удерживайте при этом карданный
вал ленточным ключом от роворачивания.
|
 |
4 Отверните болты крепления и отсоедините карданный вал от
редуктора заднего моста (стрелки на иллюстрации). Внимание:
Чтобы установить карданный вал в прежнее положение маркируйте
краской взаимное положение фланцев карданного вала и редуктора.
|
 |
5 Ослабьте на несколько оборотов резьбовое кольцо (стрелка
на иллюстрации) на скользящем элементе с помощью большого
гаечного ключа. Если такого ключа в наличии нет, ослабьте
резьбовое кольце газовым ключом.
 |
Болты -А- крепления центрального подшипника пока не
ослабляйте.
|
6 Отожмите фланец карданного вала отверткой от редуктора
заднего моста. При этом карданный вал сдвигается у скользящего
элемента (стрелка на иллюстрации).
|
7 Ослабьте болты крепления -А- центрального подшипника, обратитесь
к иллюстрации.
 |
При этом удерживайте карданный вал, чтобы он не упал. Не уроните
вал в шарниры. В частности, у шарнира равных угловых скоростей
вал может смять резиновый чехол.
|
8 Карданный вал, состоящий из трех частей: Аналогичным
образом отверните второе резьбовое кольцо у центрального подшипника.
Отожмите передний фланец карданного вала назад, при этом карданный
вал сдвигается.
9 Карданный вал, состоящий из трех частей: Отверните болты
крепления второго центрального подшипника к днищу.
 |
Если имеются шайбы болтов крепления, их необходимо поставить
при сборке на прежние места.
|
10 Немного наклоните вниз карданный вал у центрального подшипника
и выньте из центрирующей цапфы на КПП.
 |
Защитите шарнир равных угловых скоростей карданного вала крышкой
или полиэтиленовым пакетом от загрязнения.
|
|
|
|
|
 |
Карданный вал отбалансирован и должен заменяться только в
комплекте. Изношенные валы заменяются.
|
При наличии вибрации и шума, идущего из карданного вала, его необходимо
отбалансировать на СТО. Кроме того, необходимо выяснить, исправны
ли шарниры. Имеются СТО, которые специализируются на ремонте карданных
валов.
 |
11 Замените эластичную муфту, если она деформирована или
имеет поры. Для этого отверните болты крепления (стрелки на
иллюстрации). Новую муфту вставьте так, чтобы стрелки на окружности
показывали в сторону соответствующих рычагов фланца.
|
 |
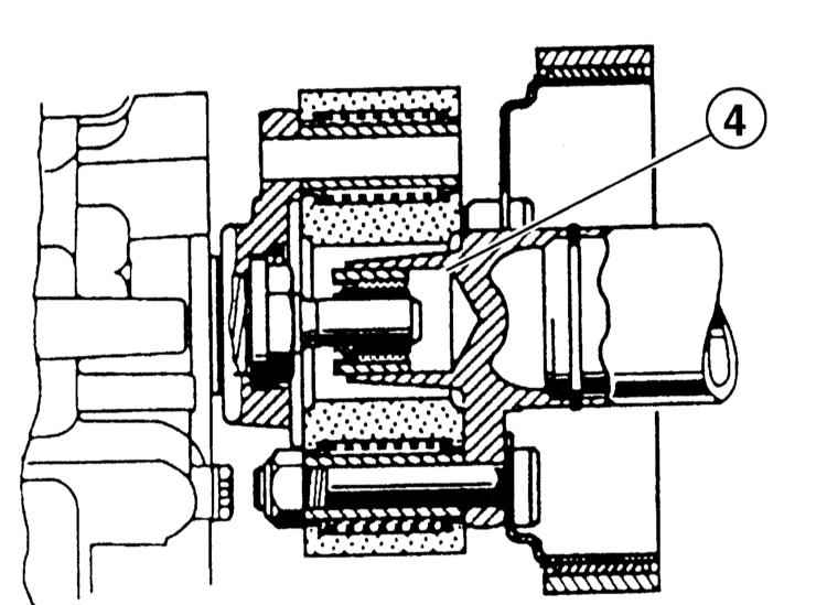
12 Перед установкой визуально проверьте центрирующий элемент
-4- карданных валов. Смажьте центрирующий элемент смазкой
“MOLYKOTE LONGTHERM 2 PLUS” или “OPTIMOL OLISTAMOLY 2”. Поврежденный
элемент замените на СТО.
|
13 Вставьте карданный вал сначала спереди в центрирующий элемент
и закрепите болтами, не затягивая.
14 Наденьте карданный вал с вытянутым шарниром на фланец редуктора
заднего моста.
15 Слегка затяните резьбовое кольцо у скользящего элемента карданного
вала моментом 10 Н•м.
16 Равномерно затяните гайки крепления карданного вала к редуктору,
приведенными в Спецификациях усилиями. Применяйте новые самостопорящиеся
гайки.
17 Затяните новыми самостопорящимися гайками карданный вал к фланцу
КПП. Момент затяжки зависит от класса прочности болтов, который
выбит на головке (обратитесь к Спецификациям).
18 Закрепите центральный подшипник к днищу моментом 20 Н•м.
19 Карданный вал, состоящий из трех частей: Закрепите второй
центральный подшипник на днище моментом 20 Н•м. Резьбовое кольцо
затяните моментом 10 Н•м.
20 Закрепите теплозащитный экран системы выпуска. Установите систему
выпуска, обратитесь к Разделу Снятие и установка
системы выпуска.
|
|
//-->
|
|